Holiday Cottages
  • England
    South East Midlands Yorkshire and the Humber East South West North East North West
  • Scotland
    Central Scotland Southern Scotland South West Scotland Highlands and Islands North East Scotland
  • Wales
    South West Wales South Wales Mid Wales North Wales South East Wales
  • Top Destinations
    Oban Westward Ho! Kenmore Somerford Keynes Torquay Tuckenhay Rosecraddoc Skegness Sewerby
  • Offers
    Last Minute Breaks Last Minute Holidays
  1. Cottages
  2. England
  3. South East
  4. Berkshire
  5. Shefford Woodlands
  6. Olivers Barn

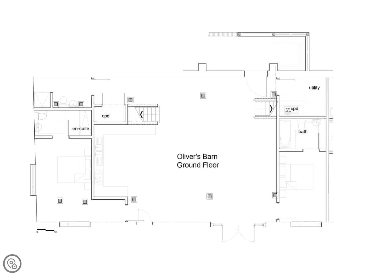
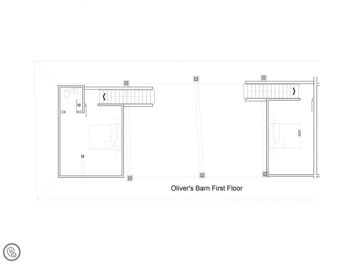
Olivers Barn Shefford Woodlands

  View All Photos

Sleeps 2

4 Bedrooms

3 Bathroom

2 Pets

Olivers Barn - Facilities

  • Fire / Woodburning Stove
  • Bicycle Storage
  • Dishwasher
  • Ground Floor Facilities
  • Electricty / Utilities Included
  • Garden / Patio Enclosed
  • Patio / Garden
  • Golf Course Local
  • Multiple Properties
  • Local Horse Riding
  • Rural Property
  • TV
  • Wheelchair Accessible
  • WiFi / Internet Access
  • Bedding / Towels Included
  • Luxury Property
  • Washing Machine
  • Working Farm
  • Wheelchair Accessible Entrance
  • On Site Parking
  • Shower
  • Electric Vehicle Charger
  • BBQ
  • Highchair
  • Local Pub
  • Cot

Olivers Barn

Olivers Barn is joined to Hatchers Barn – also available to rent – a perfect add on for larger groups. They mirror each other and are two beautiful barn conversions in the stunning North Wessex Downs, an Area of Outstanding Natural Beauty. They are the perfect properties for both family and friend groups looking for excellent quality accommodation to reunite and get together in a beautiful part of the country. They can be booked together to sleep up to 16 or as two completely separate houses of eight, and the owner has thoughtfully arranged for on-site chefs that can provide celebration cakes and meals, by prior arrangement. It’s a wonderland for walkers with a footpath from the front door which will take you into the beautiful countryside. Cycling is also very popular in this area with plenty of routes to take and discover.
Other local attractions and activities in the area include Barbury shooting school, Lambourn racing stables, Newbury Racecourse, Highclere Castle, Avebury Stone Circle, Donnington Castle, Thatcham Nature Discovery Centre, and the prestigious Windsor Castle.

Other Properties Located Near Olivers Barn

Endeavour Cottage
6
3
3
0

Endeavour Cottage

Whitby
Downhouse Cottage
4
2
1
2

Downhouse Cottage

Trebarwith
Lynton Cottage
7
4
2
0

Lynton Cottage

Combe Martin
The Heron
4
2
1
2

The Heron

Ardentinny
Downhouse
5
3
1
3

Downhouse

Trewarmett
Upper Close
8
4
2
3

Upper Close

Walton
Hindscarth
4
2
1
0

Hindscarth

Keswick
Sardis Cottage
4
2
1
2

Sardis Cottage

Sardis
Brambles Kip
4
2
1
0

Brambles Kip

Freshwater
Henge Estate
10
9
6
2

Henge Estate

Elston
Kia Ora Cottage
6
3
1
2

Kia Ora Cottage

Seahouses
Pannett Place
4
2
1
0

Pannett Place

Whitby
Owls Roost
2
1
1
1

Owls Roost

Aldeburgh
Salters Cottage
6
3
1
2

Salters Cottage

Wainfleet St Mary
Chestnut Cottage
6
3
1
2

Chestnut Cottage

Wainfleet St Mary
Granary Cottage
6
2
1
2

Granary Cottage

Wainfleet St Mary
Red Kite Cottage
4
2
1
2

Red Kite Cottage

Glackmore
Field View
5
2
1
2

Field View

Wainfleet St Mary
Sea Breeze
4
2
1
4

Sea Breeze

Kessingland
Sanctuary Cottage
6
3
2
2

Sanctuary Cottage

Aberdaron
Silver Birch
4
1
1
2

Silver Birch

Toppesfield
English Oak
4
1
1
2

English Oak

Toppesfield
The Stable
2
1
1
2

The Stable

Brent Knoll
Lower Lochturffin
6
3
2
4

Lower Lochturffin

Treffynnon
Horsebox 1
2
1
1
1

Horsebox 1

St Owen's Cross
Manor View First Floor Apartment
2
1
1
1

Manor View First Floor Apartment

St Owen's Cross
Pengethley Manor
22
11
11
2

Pengethley Manor

St Owen's Cross
Trelaw
6
3
1
2

Trelaw

Sinclairston
Hawthorn Lodge
8
4
4
2

Hawthorn Lodge

Nant glas
Lime Lodge
8
4
4
2

Lime Lodge

Nant glas
Oak Lodge
8
4
4
2

Oak Lodge

Nant glas
The Mill
2
1
1
0

The Mill

West Linton
The Lodge
2
1
1
2

The Lodge

West Linton
Mont Stewart Cottage
4
2
2
2

Mont Stewart Cottage

Whiting Bay
Holiday Cottages

Information

  • FAQ
  • Privacy Policy
  • Cookie Policy
  • Terms & Conditions
  • Sitemap

Address

Holiday Cottage Group
20 Wenlock Road
Islington
London
N1 7GU
United Kingdom

Contact Information

  •   01872 672 344
  • Contact Us
© 2026 Holiday Cottage Group